| MAIN STRUCTURE: | Built on a reinforced seismic steel frame, the unit features fluorocarbon-coated aluminum exterior panels, a 50 mm PU + foam insulation system, and double-tempered LOW-E glass for enhanced energy performance. Aluminum doors and windows, a cement-fiberboard base with waterproof flooring, and integrated safety elements—including a smoke alarm and pipe antifreeze belt—ensure durability and year-round reliability. |
| INTERNAL STRUCTURE: | Interior finishes include bamboo-charcoal wall panels and high-grade wood-grain flooring, paired with 3000K warm LED lighting and concealed ambient strips to create a soft, inviting atmosphere. Electric curtains, a voice-control panel, a frosted-glass bathroom door, and a built-in ventilation system further elevate daily comfort and convenience. |
| SANITARY WARE: | Outfitted with a JOM00 smart toilet, branded basin and faucet, a JOM00 shower set, and an integrated warm-air bath unit, the bathroom delivers a clean, modern user experience. A Haier storage water heater provides stable hot-water supply for everyday use. |
| MAIN EQUIPMENT: | A whole-house intelligent system anchors the unit’s core utilities, supported by electrical components from GREE, CHNT, OPPLE, and Schneider. Pre-installed water, sewage, and power lines streamline on-site deployment, while LED downlights, an outdoor silicone light strip, dual 1.5P AC units, a waterproof smart lock, and an integrated master panel complete the functional setup. |
| OPTIONAL: Electric floor heating, a ceiling projector, a sprinkler system, and a modular kitchen can be added as needed. Motorized curtain tracks and an electric top sunshade offer further enhancements to comfort and shading control. | |
TRIANGLE T30
$39,850.00
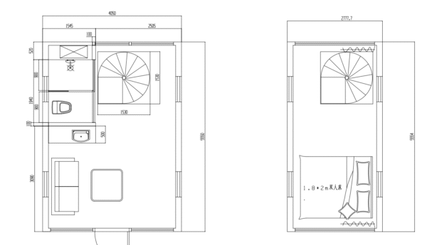
Dimension:
First Floor: 5.5 × 4.05 × 2.55 m
Second Floor: 5.5 × 2.59 × 2.55 m
Building Area: 36 m²
Occupancy: 2–4 people (depending on layout)
The Custom Double-Layer Triangular Villa delivers a distinctive geometric architectural silhouette combined with modern high-performance building materials. Its triangular vaulted form enhances spatial height, creates excellent daylight exposure, and provides a visually iconic profile ideal for boutique resorts, homestays, glamping parks, and mountain or lakeside retreats.
Engineered with a corrosion-resistant galvanized steel seismic frame and a 10 cm polyurethane insulation envelope, the villa achieves superior durability, energy savings, and climate adaptability. A refined interior finish—featuring bamboo-wood fiber panels, aluminum veneer accents, and a steel-wood spiral staircase—balances comfort and modern aesthetics. Smart-ready features, concealed exterior equipment spaces, and premium sanitary ware collectively deliver a complete, elevated living experience.













Reviews
There are no reviews yet.